極光餐廳裝修設計
| 項目名稱 | 極光餐廳裝修設計 | 行業屬性 | 酒店/餐飲/會所 |
| 項目地址 | 北京大街東方紅大道口和美斜對面 | 項目造價 | 18.1萬 |
| 主關鍵詞 |
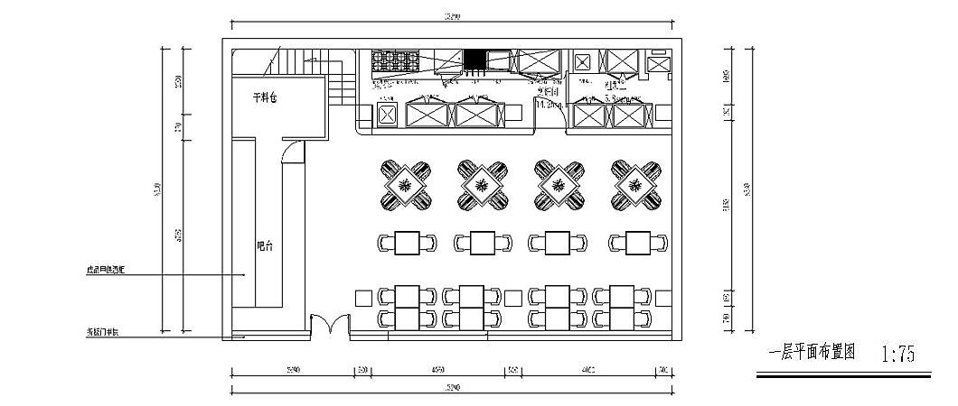
▄原建筑結構分析: 設計師運用飄渺莫測的燈光營造氣氛,錯落擺放的歐式桌椅不僅合理的切割利用了空間,還打造了充滿魅力的歐式風情空間。燈光的飄動又為餐廳的主題——極光有了很好的詮釋。
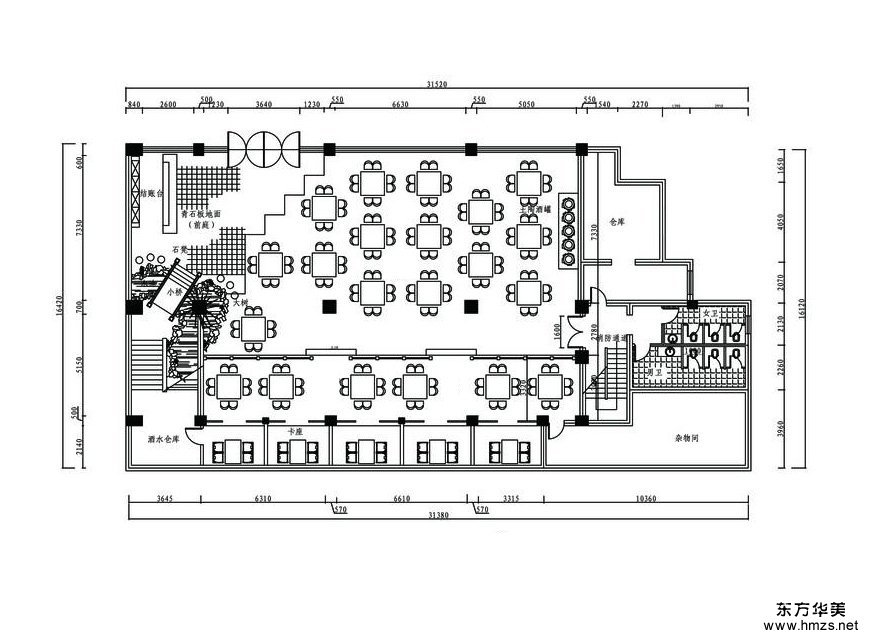
▄設計需求: 抬高的地臺散落著餐桌餐椅,不擁擠,不吵鬧,同時大量的綠植打造充滿生機的空間,舒緩人們的情緒,白色的拱形門窗顯現了異域的風格,符合西餐廳的主題。 設計師采用舒適的座椅,分割出高闊的空間,給每位就餐者營造一個完美的就餐氛圍,讓人流連忘返。歐式風格的舒適沙發椅,精致的鐵藝吊燈,還有白色相框的照片墻,在溫暖的燈光下就餐,是人們一天辛苦工作后的極致享受。
▄設計風格定位: 設計師運用飄渺莫測的燈光營造氣氛,錯落擺放的歐式桌椅不僅合理的切割利用了空間,還打造了充滿魅力的歐式風情空間。燈光的飄動又為餐廳的主題——極光有了很好的詮釋。


北京鑄誠大廈辦公裝修工程
北京銀河SOHO辦公裝修工程
301醫院裝修工程
